Daten Und Fakten
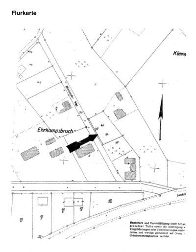
Lage
Das Haus befindet sich in zentraler Lage nahe einer Großstadt in der Nähe eines Verteilerkreises zur Autobahn. Ein wohnen in landschaftlich reizvoller Umgebung und dennoch zentral zeichnet diesen hochwertigen Standort aus. Bis zum historischen Marktplatz im Stadtzentrum mit seinen vielfältigen Einzelhandelsgesellschaften und einer gut sortierten Gastronomie sind es nur wenige Fahrminuten. Schulen, Kindergärten und öffentliche Verkehrsmittel sind schnell und bequem zu erreichen. Diverse Naherholungsgebiete, Tennisplätze, Golfanlagen, Reiterhöfe als auch die Autobahn Auffahrten div. Richtungen unterstreichen die infrastrukturell perfekte Lage dieser Liegenschaft.
- BAUJAHR 1959
- ZUSTAND gepflegt
- WOHNFLÄCHE 210 m2
- NUTZ-/NEBENFLÄCHE 30 m2
- GRUNDSTÜCK 722 m2
- ZIMMER 15
- VERFÜGBARKEIT nach Vereinbarung
- KÄUFERPROVISION 3,57% inkl. ges. MwSt
- KAUFPREIS 390.000,00 €
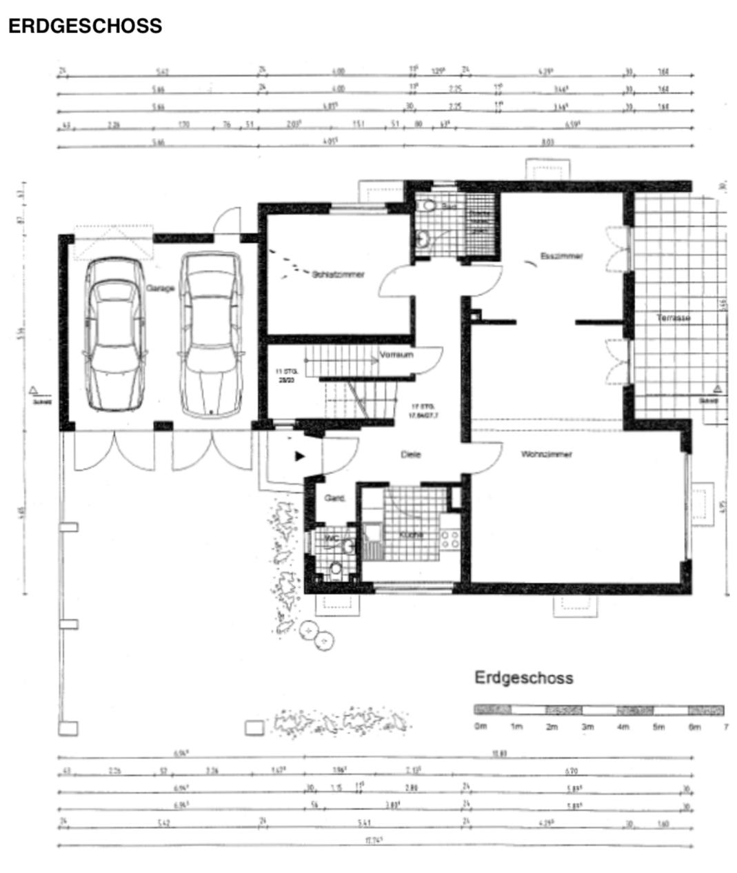
Vor wenigen Jahren wurde das vorgenannte Bad komplett erneuert. Eine große, ebenerdige begeh – und befahrbare Dusche finden hier ihre Verwendung.
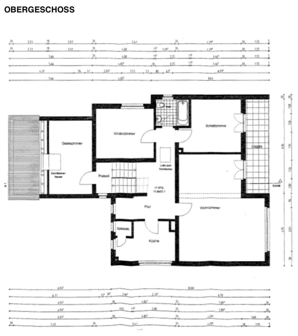
Eine bequeme Treppe im schwarzen Kunststein führt sie in das Gästezimmer. Es handelt sich hier um ein Zwischengeschoss (überbaute Doppelgarage). Das Obergeschoss teilt sich ähnlich aus wie das Erdgeschoss. Anhand der Grundrisse erkennen Sie, dass diese Ebene früher als offene, zweite Wohnung genutzt wurde. Es wurde als Mehrgenerationenhaus geplant und gebaut. Vier teilweise sehr große Zimmer befinden sich hier zur vielfältigen Nutzung. Ein Badezimmer und die Loggia vollenden das Obergeschoss. Über eine Einschubtreppe können Sie das nicht ausgebaute Dachgeschoss erreichen.
- EINGÄNGE 2
- TERASSEN 1
- TERASSENFLÄCHE 30 m2
- PARKPLÄTZE 4
- GARAGE 2 - Doppelgarage
- CARPORT (n/v)
- SCHUPPEN 1
- UMZÄUNUNG Voll
Wohnfläche: circa 207 m²
Fenster: überwiegend isolierverglaste Fenster
Heizung: Öl Zentralheizung mit zentraler Warmwasserversorgung. Das Tankvolumen beträgt circa 6750 Liter. Die Heizung wurde im Jahr 1993 erneuert.
Garage: Doppelgarage
Nutzung: das Haus ist frei
Bemerkung
Besichtigungen sind jederzeit möglich nach vorheriger Terminabstimmung mit meinem Büro und nur in Begleitung. Dieses Angebot erfolgt nach Angaben des Verkäufers ohne Haftung und unter Bezug auf die umseitigen Bedingungen
Neuausstattungen seit 2005:
Strichpaket Fußboden Wohnzimmer
Kachelofen
Terrassenfußboden
Fenster Schlafzimmer
Einbauküche Obergeschoss
.
- STOCKWERKE 2
- Ø-DECKENHÖHE 2 m
- FUSSBODEN Parkett + Fliesen
- ZIMMER 20
- KÜCHEN 2
- HAUSWIRTSCHAFTSRÄUME 2
- TOILETTEN 3
- KELLERRÄUME 2
- SONSTIGE ZIMMER 10
- INTERNETGESCHWINDIGKEIT 50 mbit/s
Innen ist die Hauptwohnung mit einer Wasserheizung ausgestattet, das WZ mit Kachelofen. Alle Zapfstellen haben Zentralwarmwasserversorgung.
- DACHDECKUNG Ziegel
- WESENTLICHER ENERGIETRÄGER Öl
- BAUWEISE HEIZUNG Wasserumlauf
- ENERGIEAUSWEIS angefordert
- BAUJAHR 1995
- ENERGIEBEDARF 282 kWh (m2a)
- ENERGIEEFFIZIENZKLASSE H
- Heizungstechnik Öl Vissmann
Das Haus befindet sich in zentraler Lage. Ein wohnen in landschaftlich reizvoller Umgebung und dennoch zentral zeichnet diesen hochwertigen Standort aus. Bis zum historischen Marktplatz im Stadtzentrum mit seinen vielfältigen Einzelhandelsgesellschaften und einer gut sortierten Gastronomie sind es nur wenige Fahrminuten. Schulen, Kindergärten und öffentliche Verkehrsmittel sind schnell und bequem zu erreichen. Diverse Naherholungsgebiete, Tennisplätze, Golfanlagen, Reiterhöfe als auch die Autobahn Auffahrten in alle Richtungen unterstreichen die infrastrukturell perfekte Lage dieser Liegenschaft.
- BÄCKER 5 min
- SUPERMARKT 5 min
- BAUMARKT 10 min
- KINDERGARTEN
- GRUNDSCHULE
- ÖVPN Haltestelle
- BUSHALTESTELLE
- BANKAUTOMAT
Der Kreis war von 1929-1975 ein Kreis Regierungsbezirk. Mit diesem gehörte er zunächst zur preußischen Nordprovinz und ab 1946 zu S-H. Die Bildung des Kreises erfolgte am 1. August 1929 durch Zusammenschluss aus den bisherigen Kreisen im Rahmen des Gesetzes über die kommunale Neugliederung eines Industriegebietes.




Das sagt der Besitzer:


Objektbilder
GrundRisse


















